м2
соток

Дом 264м², участок 12,99 сот.

Павловск, ул Александра Матросова, д. 44 литера А
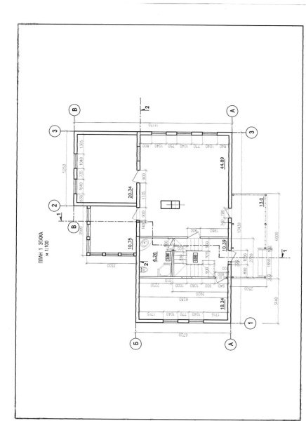
Павловск, территория Пязелево ул. Александра Матросова № 44 литера А), участок 12,99 сот. (Земли населенных пунктов / Индивидуальное жилищное строительство). Дом: этажность - 2. Реконструкция дома в 2021, высота потолков первый этаж - 3 м., второй этаж - 2,7 м. Фундамент ленточный. Дом расположен правильно, солнце весь день присутствует в доме. Материал наружных стен - рубленные. Коммуникации - электричество 15 квт, центральное газоснабжение, центральный водопровод, септик. Отопление котел газовый, радиаторы, теплый пол, гвс - колонка. 9 комнат, два санузла, три террасы. Пол доска массив, стены под чистовую отделку. Материалы для отделки в наличии. Отделка фасада на любой вкус, маяки выставлены. В самые холодные месяцы стоимость коммунальных платежей не превышает 35руб/м2. На участке сруб бани, гараж. Участок сухой, ровный.Подъезд к участку - асфальт, остановка общественного транспорта - 60.м. В 10- минутной доступности конный клуб, водоем, парки. Один взрослый собственник. Торг уместен.
Тип предложения Продам
География Павловск, Воронежская область, Павловский район
Адрес
ул Александра Матросова, д. 44 литера А
Вид участка
Земли поселений (ИЖС, ЛПХ)
Площадь дома
264,00 м2
Площадь участка
12,99 соток
Дополнительно
возможность ПМЖ

Все ваши сообщения мы читаем и все пожелания учитываем, но, к сожалению, ответ не гарантируем.

Если вы расчитываете получить ответ, не забудьте заполнить это поле.
Отправить

Сообщение будет отправлено на электронную почту автора объявления. Ваш электронный адрес будет ему доступен для ответа.

Отправить
Отправить